Продава 3-СТАЕН, град Варна, Владислав Варненчик 1 ID 46701657
Брокер
Обща информация
Допълнителна информация
С РАЗРЕШЕНИЕ ЗА СТРОЕЖ !
НОВО КАЧЕСТВЕНО СТРОИТЕЛСТВО! СГРАДА РАЗПОЛОЖЕНА В НАЙ- ХУБАВА ЧАСТ НА КВАРТАЛ ВЛАДИСЛАВ ВАРНЕНЧИК! ВЪЗМОЖНОСТ ЗА ИЗБОР НА РАЗЛИЧНИ ОБЕКТИ!
Агенция за недвижими имоти НОВ ВЕК ви представя новият ни ексклузивен проект, сграда VARNENCHIK 4 ! Свържи се с нас и резервирай своят нов имот, само срещу 4000 евро депозит! Възможност за избор между различни етажи и изложения, открити паркоместа, подземен паркинг и самостоятелни гаражи! Сградата разполага с жилища с по една и две спални, както и възможност за обединение на апартаменти! Гъвкави схеми на плащане, според възможностите и профила на клиента. Всеки закупил имот в сградата, получава безплатна консултация с интериорен дизайнер, както и отстъпка при поръчка на проект за завършване и обзавеждане!
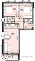
Имотът е с чиста жилищна площ от 79, 3кв. м и се състои от: дневна с кухня и трапезария, две спални , балкон, баня с тоалетна, килер. Разположен е на пети от 7 етажа. Към всеки имот ще бъдат включени съответните идеални части от общите части на сградата, както и от земята върху която ще бъде изграден обекта.
Сградата ще бъде разположена под бул. 3-ти март, близо до магазини KAUFLAND и JUMBO. Новите собственици ще имат на разположение всичко необходимо на пешеходно разстояние. Магазини, аптеки, парк с алеи за разходка и обособени места за домашни любимци, спирка на градски транспорт с редовни линии до всички части на града, училища и детски градини, фитнес зала, банки, пазар, офиси на спедиторски компании и много други!
ПРЕДИМСТВА НА СГРАДАТА:
Функционални разпределения за максимален комфорт и уют на обитаване;
Светли и просторни стаи с правилни форми, всяко жилище разполага с 1 или 2 сервизни помещения;
Панорамна гледка към Варненското езеро и града;
Качествено изпълнение до степен на завършеност БДС, подготвено за довършителни дейности;
Възможност за обединение на апартаменти при нужда от по- голяма площ;
БОНУСИ ПРИ ПОКУПКА НА ИМОТ В СГРАДАТА:
Безплатна консултация с интериорен дизайнер;
Отстъпка при поръчка на проект за интериорен дизайн;
Отстъпка от материалите, необходими за довършителни работи;
Отстъпка при поръчка на обзавеждане и оборудване;
Опция за завършване до ключ;
За повече информация и огледи :
Богдан Димитров - 0883/458889










