Обща информация
Допълнителна информация
Unique Estates има удоволствието да Ви представи представителен офис за продажба с просторна слънчева тераса, разположен в една от най-луксозните сгради в квартал Кръстова вада.
Локацията е една от най-престижните в София, в непосредствена близост до метростанция и спирки на градския транспорт, мол и с бърз достъп до главни булеварди и ключови артерии на града.
Сградата се отличава с изисканите общи части от мрамор, рецепция, охрана и контрол на достъп с лицево разпознаване, видеонаблюдение в общите части и около сградата. За допълнителен комфорт са предвидени два сутерена с паркоместа, велосипедни места и зарядна станция за електромобили.
Изпълнението е с първокласни материали и съвременни технологични решения. Външните стени са изградени с тухли Wienerberger Porotherm 25 N+F, фасадата е с каменна окачена облицовка с дебелина 3 см, топлоизолация Rockwool и външна мазилка Baumit CreativTop. Дограмата е от алуминиеви профили Reynaers Master Line 8 с троен стъклопакет и външно стъкло AGC StopRay Vision 70. Хидроизолацията е Sika, вътрешните мазилки - Baumit Ratio 1000L, а апартаментите разполагат с 5 мм шумоизолация и тераси с двоен под. Електрическото табло включва Smart panel Drivia от Legrand, входните врати са блиндирани модел Solid 55, а асансьорът е високоскоростен Smart KONE за 15 човека. Предвидена е и опция за завършване до ключ.
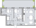
Офисът е с площ от 113 кв. м. и се намира на трети от осем етажа. Пространството е разпределено в три помещения и включва предверие, заседателна зала, две самостоятелни работни помещения, кухненски бокс, две тоалетни и просторна тераса.
Разпределението на офиса включва преддверие, заседателна зала, две отделни работни помещения, кухненски бокс, две тоалетни и тераса Цената е без включен ДДС. Ref. ID:28858









