Обща информация
Допълнителна информация
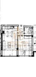
Агенция за недвижими имоти HEGEMON ESTATE Ви предлага двустаен апартамент в квартал Левски, в близост до Терапията. Жилището се намира в новострояща се сграда пред А14, на ет. 3/6 с асансьор. Разпределение: входно антре, всекидневна с кухненска част. спалня, комбиниран санитарен възел. Изложение ЮГ. Сградата се изгражда от доказан строител, с най- качествени материали, според всички изисквания на Европейския съюз. Има възможност за закупуване на паркомясто. Отлична локация.
Агенция HEGEMON ESTATE съдейства с професионална консултация, подготовка на нужните документи за закупуване на желаният от вас дом, както и съдействие за отпускане на банков кредит при най-добри условия. За повече информация, заповядайте в нашият офис, който се намира на бул. Владислав Варненчик 109, или се обадете на посоченият телефон. Код на офертата: 12617.





