Брокер
Обща информация
Допълнителна информация
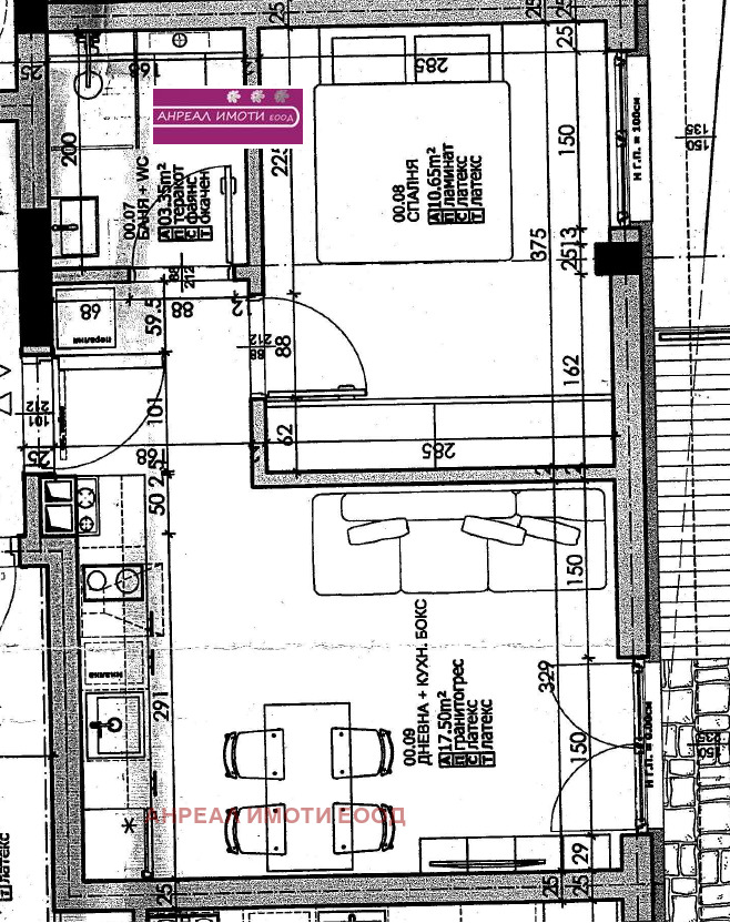
ОФЕРТА 5895 Предлагаме Ви изключително привлекателен, светъл и функционален двустаен апартамент с площ 43 кв. м, разположен на първи етаж в добре поддържана и представителна сграда(която е с внесени документи и чака Разрешение за ползване), ситуирана в близост до престижния бул. Мадрид , само на крачки от бул. Евлоги и Христо Георгиеви , но същевременно на уютна, тиха и спокойна уличка, далеч от шума и динамиката на основните артерии.
Жилището (ЗП 37. 45 кв. м) е на шпакловка и замазка, което предоставя рядката възможност да го завършите по свой вкус и да го превърнете в модерен, стилен и персонализиран дом. Разпределението е удобно, практично и добре осветено, като позволява максимално комфортно използване на всеки квадратен метър.
Апартаментът се отоплява на ТЕЦ, което гарантира икономично, равномерно и надеждно отопление през зимата. Към имота има прилежащо мазе (2. 45 кв. м), чудесно за съхранение, както и подземно паркомясто, включени в цената изключително ценен бонус за този централен район. Допълнително жилището разполага и с идеални части от земя, което повишава стойността му и дава допълнителни предимства.
Имотът се намира в една от най-търсените части на града район, известен със своята перфектна инфраструктура, удобни транспортни връзки, зелени пространства, елитни училища, магазини, заведения и спокойна градска атмосфера.
Това е едно изключително перспективно, уютно и практично жилище, подходящо както за лично ползване, така и за инвестиция в район с постоянно нарастваща стойност.

