Обща информация
Допълнителна информация
Собственик продава тристаен апартамент в квартал Левски Г на 200 метра от новостроящата се спирка на метрото.
Локация: https://maps. app. goo. gl/35JmCEuGc8cNDAvLA?g_st=av
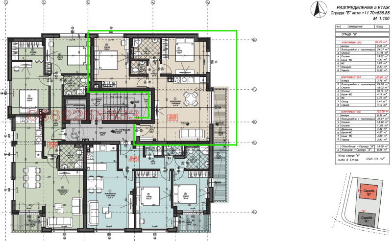
Квадратура: 92, 7кв. м. (застроена площ 77, 69кв. м. , общи части 15, 01кв. м. )
Цена: 203940
Етап на завършеност: акт 14, очаква се скоро акт 15
Акт 16: 2026
Издава се на: Замазка и мазилка
Блиндирана входна врата
Дограма: PVC, шесткамерна, троен стъклопакет четири сезона бяло - К стъкло;
Напълно завършени тераси и балкони
Монтирани ел ключове и контакти
Контрол на достъпа
ТЕЦ
Етаж: 5
Апартамент Б13 на снимките
Разпределение:
входно антре 2, 01кв. м. , спалня 11, 45кв. м. , спалня 13, 82кв. м. , баня с тоалетна 4, 37кв. м. , тоалетна 1, 65, коридор 2, 33кв. м, всекидневна с трапезария 24, 37кв. м, тераса 5, 52кв. м.
Подземно паркомясто 07 - апартаментът не може да се купи без паркомястото, цената е отделно.
Цена: 30000 евро
Квадратура: 26, 41кв. м. (застроена площ 12, 50кв. м. , общи части 13, 91кв. м. )
Етаж: -1







