Брокер
ТаняЛичен телефон: 0883355512
Посетена 49 пътиПубликувана в 11:29 на 28 Ноември 2025
Обща информация
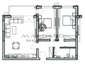
Квадратура98 m2
Етаж4-ти
Допълнителна информация
оф. 23766
ТОП ЛОКАЦИЯ! Предлагаме Ви ТРИСТАЕН АПАРТАМЕНТ в НОВОСТРОЯЩА се НИСКА СГРАДА. Жилището се състои от ПРОСТОРНА ВСЕКИДНЕВНА С КУХНЯ, ДВЕ СПАЛНИ, СКЛАДОВО ПОМЕЩЕНИЕ, БАНЯ С ТОАЛЕТНА, ОТДЕЛНА ТОАЛЕТНА, ВХОДНО АНТРЕ И ТЕРАСА. Сградата съчетава удобство, качество и отлична локация. Чудесно предложение за Вашия нов дом или една много добра инвестиция!
Авангард Риъл Естейт предлага Висока сигурност при покупка на имот и цялостно съдействие до финализиране на сделката пред нотариус. За контакт: email: [email protected]; За още актуални оферти: www.avangardrealestate.bg
Особености
Асансьор • Интернет връзка • Саниран • Тухла
Страница на обявата
Брокер
ТаняЛичен телефон: 0883355512



