Продава 2-СТАЕН, град Варна, к.к. Чайка ID 48598435

74 000 €144 731.42 лв.Цената е с включено ДДС

Агенция

КАПИТАЛ ПРОПЪРТИ ГРУП - ВАРНА, град Варна
КАПИТАЛ ПРОПЪРТИ ГРУП - ВАРНАград Варна ул. Тракия 10; ет. 2; ап. 3
Посетена 275 пътиПубликувана в 14:44 на 26 Септември 2025

Обща информация

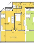
Квадратура54 m2

Допълнителна информация

КОД 1119

БЕЗ КОМИСИОНА ОТ КУПУВАЧА!!! ЦЕНА ОТ ИНВЕСТИТОР!!!

Capital Property Group представя двустайно жилище със статут на апартамент за продажба в местност Кабакум. Намира се в нова сграда в строеж, завършване на сградата се очаква през 2024. Жилището е разположено на партерен етаж в шест етажна сграда с асансьор. Състои се от дневна с кухненска част /23 кв. м. /, спалня /12 кв. м. /, баня с тоалетна /3, 4 кв. м. /, коридор /6. 32 кв. м. /, английски двор /19 кв. м/. Издава се по БДС. В близост се намират автобусни спирки, магазини , хипермаркети и 500 метра пешеходно разстояние от плажа. Има възможност за закупуване на паркомясто или гараж .

В сградата се продават и други апартаменти.

Едностайни апартаменти (с тераси от типа английски двор ) на цени започващи от 51 000евро, двустайни на цени започващи от 59 000евро.

Капитал Пропърти Груп разполага с юридически отдел, който извършва всички необходими юридически и технически проверки на имота, ще организира всички етапи на сделката до нейното финализиране с нотариално прехвърляне на имота.

Капитал Пропърти Груп може да Ви съдейства за отпускане на банков кредит при възможно най-добри условия за клиента, като избора на банка се определя спрямо нуждите и възможностите на клиента, при това напълно безплатно.

За повече информация и огледи се свържете с нас на посочения телефон или ни пишете на viber.

Особености

В строеж • Асансьор • Контрол на достъпа • Саниран • Възможност за дан. кредит • Тухла

Страница на обявата

Агенция

КАПИТАЛ ПРОПЪРТИ ГРУП - ВАРНА, град Варна
КАПИТАЛ ПРОПЪРТИ ГРУП - ВАРНАград Варна ул. Тракия 10; ет. 2; ап. 3

Споделяне

Преглeд на обявите по населени места: