Брокер
Обща информация
Допълнителна информация
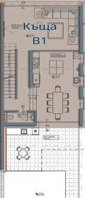
Агенция за недвижими имоти АВЕНДА предлага редова къща за продажба в затворен комплекс, чийто строеж ще стартира 2025 г. в с. Лозен, заобиколен от зеленина и ниско строителство. Къщата е на 3 етажа, изложението е север/изток/юг. На партерно ниво е разположен двоен гараж, складово помещение, самостоятелна спалня за гости със кухненски бокс и собствена баня с тоалетна. Първият етаж представлява: дневна с кухненски бокс и трапезария, самостоятелна тоалетна и голяма веранда с кът за барбекю. На последния етаж са разположени две самостоятелни спални, баня с тоалетна, родителска спалня със собствена баня с тоалетна, кабинет и тераса. Застроената площ е 288, 61 кв. м. , с общите части 323, 38 кв. м. Прозорците са френски, дограмата е 6 камерна, троен стъклопакет. Във всяка къща ще бъде изградена автоматизирана вентилационна система с рекуперация, която осигурява свеж въздух в помещенията, извежда влагата и елиминира всякакви бактерии и неприятни миризми. Отоплението е предвидено чрез термопомпа, за която ще бъде изградена инсталацията. Фасадата е окачена и ще бъде изпълнена с интегрирана топлоизолационна система - дебелина 20см. Покривът ще бъде топлоизолиран с каменна вата - дебелина 25см. Село Лозен е разположено в подножието на Лозенската планина, въздухът е чист благодарение на постоянното движение на въздушни маси препятстващи задържането на мъгли. Основни предимства са близостта до природата. Кръговото движение на Южната дъга осигурява бърз достъп до сърцето на столицата за 15-20 мин. Местоположението дава прекрасна възможност за хора търсещи тишина и спокойствие на една ръка разстояние от центъра на София.
Гъвкава схема на плащане съобразена с етапа на строителство.
Срок за завършване 3 години след получаване на разрешение за строеж.
За огледи и въпроси се свържете с нас на посочения телефон.
Aгенцията предлага БЕЗПЛАТНО СЪДЕЙСТВИЕ за одобрение и получаване на ипотечен кредит за покупка на имот при преференциални условия чрез услугите на най-големия лицензиран кредитен консултант!












