Обща информация
Допълнителна информация
Агенция за недвижими имоти Flat&House продава тристаен апартамент в новострояща се сграда в квартал Виница, гр. Варна.
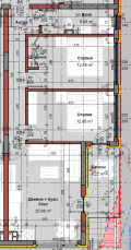
Жилището е разположено на втори етаж и се състои от входно антре(7. 77 кв. м), дневен тракт с кухня (20. 86 кв. м), две спални (12. 45 кв. м и 12. 95 кв. м), дрешник към едната спалня (0. 96 кв. м), баня с тоалетна (5. 43 кв. м), балкон с излаз от дневния тракт (6. 27 кв. м). Сградата има асансьор. Към имота може да бъде закупено открито паркомясто в двора на сградата за сумата от 6000 евро.
Сградата е пред акт 14 и се очаква да бъде завършена през 2026 г, апартаментите се издават по БДС.
Кв. Виница е добре развит и урбанизиран квартал, в който има детска градина, училище, медицински обекти, търговски обекти и обекти за комунални услуги от различен тип.
В сградата все още има налични и други апартаменти за продажба.
За повече информация телефон за връзка 0888566079.

