Обща информация
Допълнителна информация
🙏 С всяка сделка ние от Diamond Home помагаме! 💎
Даряваме процент от нашата комисионна на Фондация Вярвай - организация, която подпомага хора, борещи се с рак.
Вярваме, че заедно можем да направим нещо повече от просто бизнес - можем да дадем надежда. ❤ ️
🏠 Представяме Ви тристаен апартамент в бутикова сграда, в един от най-предпочитаните квартали на Пловдив - кв. Беломорски!
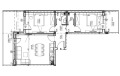
Обща квадратура - 109. 37 кв. м. + 22. 20 кв. м. пок. тераса
📐 Разпределение:
Входно антре, коридор, дневна, две спални, баня с wc, склад, две тераси.
📍 Локация:
В непосредствена близост до супермаркет, аптека, болница, кафенета и ресторанти, както и спирки на градски транспорт.
🏗 Сградата:
✔ Висококачествено строителство от утвърден инвеститор
✔ Озеленена среда и осигурени паркоместа
✔ Предлагат се и други двустайни и тристайни апартаменти
💎 Нашата мисия е да ви предоставим доверие и обслужване от най-висок клас.
💎 Предлагаме над 1000 имота.
💎 Нашите услуги включват:
- Консултация със старши брокер
- Съдействие при кредитиране
- Договаряне на най-изгодни условия
- Пълна документация и юридическа подкрепа
- Управление на имоти
💎 За информация или оглед се свържете с нас!
ОФЕРТА НОМЕР: 241915




