Брокер
Обща информация
Допълнителна информация
-НОВА СГРАДА!
-ВЪЗМОЖНОСТ ОТ ИЗБОР НА ДВУСТАЙНИ И ТРИСТАЙНИ АПАРТАМЕНТИ!
-ЕТАП: РАЗРЕШИТЕЛНО ЗА СТРОЕЖ!
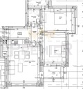
Имоти Премиер предлага на Вашето внимание функционален ТРИСТАЕН апартамент с площ 87кв. /м. в новострояща се бутикова сграда в кв. Виница. Апартаментът се състои от:
-дневна с кухненска част- 23кв. /м. с излаз към тераса;
-първа спалня 12кв. /м. с баня и тоалетна;
-втора спалня 12кв. /м. с излаз към тераса;
-два комбинирани санитарни възела- 4. 4кв. /м. и 3. 1кв. /м. ;
-коридор- 6. 8кв. /м. ;
Имотът е разположен на първи етаж от пети с асансьор, а сградата ще бъде с луксозни и висококачествено завършени общи части.
Проектът е разположен в близост до борова гора, хранителен магазин, училище, детски градини и главен булевард! Срокът за завършване е 24 месеца.
Идеален избор за живеене, отдаване под наем или бъдеща капитализация.
Ние от екипа на Имоти Премиер ще Ви помогнем в търсенето на мечтаното от Вас жилище като се ангажираме да получите професионални съвети, както и изрядни документи след пълна проверка на имота. При желание на клиента съдействаме за отпускане на банков кредит при най-изгодни условия. Разчитайте на нашата подкрепа до самото финализиране на сделката! За повече информация и оглед, позвънете на посочения телефон. Код на обявата: 377664




