Обща информация
Допълнителна информация
Предлагаме Ви голям тристаен апартамент в тухлена сграда, намираща се в центъра на кв. Красно село, близо до метростанция - Красно село, пазар - Красно село, 36 СУ Максим Горки и много други.
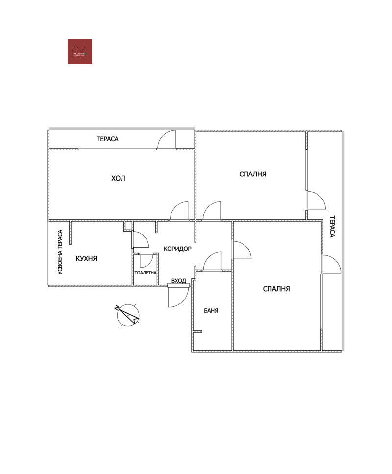
Състой се от: Хол, две непреходни спални, кухня, баня с тоалетна, самостоятелна тоалетна, коридор и три тераси с чиста квадратура от 95, 82кв. /м.
Имотът разполага с три тераси, едната от които е усвоена към кухнята, втората е към хола, а към двете спални има прекрасна голяма тераса разположена на югоизток и гледка към Витоша с дължина около 10м.
Апартаментът е подготвен за довършителен ремонт, като до момента са извършени най-скъпите пера от ремонта, като: подменена висококачествена дограма, подменено е цялото окабеляване, банята и тоалетната са завършени напълно. Остава да се направи шпакловка на стените и латекс, поставяне настилки в стаите, монтиране на врати и обзавеждане.
Изложението на жилището е както следва: две спални на югоизток, хол на североизток, кухня на северозапад. Отоплението на сградата е с ТЕЦ.
Към жилището има мазе и голям таван 20 кв. /м.
Сградата и входът са поддържани добре.
За повече информация се свържете с нас на 0885 901 801.













