Продава 3-СТАЕН, град Благоевград, Идеален център ID 50007510
Брокер
Обща информация
Допълнителна информация
ВКЛЮЧВАНЕ В СТРОЕЖ!!!
Агенция за недвижими имоти ХОУМ ФОР Ю има голямото удоволствие да ви представи за продажба тристаен апартамент 1 в новострояща се, луксозна сграда в топ центъра на гр. Благоевград.
Сградата се състои от: модерен безшумен асансьор, сутерен с паркоместа, партерен етаж с гаражи, паркоместа и пет жилищни етажа с общо 16 апартамента;
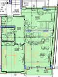
Вашият нов ДОМ се намира на КОТА + 5, 50 на втори жилищен етаж с изцяло южно изложение, което го прави много слънчев, светъл, топъл и уютен!
Застроената му площ е 66, 20 кв. м. + 15, 31 кв. м. общи части, което се равнява на 81, 51 кв. м. обща площ;
Със следното вътрешно разпределение на стаите:
- входно антре
- спалня
- тераса
- баня с тоалетна
- дневна с кухненски бокс
- тераса
- спалня
Жилището ще бъде завършено по БДС и ще се предаде в следния завършен вид:
- 6 камерна PVC дограма с двоен стъклопакет;
- Топлоизолационна система EPS (експандиpан полистирен) 10 см. и силикатна мазилка;
- Луксозен асансьор;
- Луксозни общи части с гранит;
- Стени и тавани: машинна фина гипсова мазилка;
- Опушени стъклени парапети на терасите;
- Луксозни входни врати: блиндирани с многоточково заключване;
- Изводи за климатици във всяка стая;
- Под: циментова замазка;
- Ел. до точка;
- ВиК до тапа;
- Покрив по архитектурен детайл - XPS 10 см и замазка за наклон; два пласта хидроизолация 4 мм;
За ваша сигурност, спокойствие и удобство за новия Ви ДОМ, предлагаме да закупите гараж или паркомясто, за да не се налага всеки ден да обикаляте и да търсите място на което да паркирате автомобила си.
ГЪВКАВА СХЕМА НА ПЛАЩАНЕ:
10 000 ЕВРО - първоначална вноска
ОСТАНАЛИТЕ на АКТ 16!!!
ЕТАП НА СТРОИТЕЛСТВОТО: В СТРОЕЖ!!!
АКТ 16 - до края на май 2026г. (това е документа, с който сградата се въвежда в експлоатация или по просто казано годна за живеене )
Жилището очаква своите нови собственици, които ще го стопанисват и превърнат в техен дом!
За да получите повече информация за предлаганата от нас оферта може да ни се обадете на посочените телефони за връзка!
Екипът от професионалисти на ХОУМ ФОР Ю ще Ви помогне да сбъднете мечтите си и да ги превърне в реалност, като ви съдейства НАПЪЛНО БЕЗПЛАТНО при кандидатстването за жилищен кредит с ПРЕФЕРЕНЦИАЛНИ УСЛОВИЯ от най-големия кредитен консултант в България КРЕДИТ ЦЕНТЪР!
Ако предлаганият апартамент ви е харесал и представлява интерес за вас, не се колебайте да се свържете с наш брокер, за да резервирате час за оглед в удобно за вас време!
Заповядайте в нашият офис на бул. Кирил и Методий 2 за безплатна консултация с нашите професионалисти, които ще ви обърнат специално внимание, като ви запознаят с пазара на недвижими имоти и ви помогнат с избора на ново жилище според вашите изисквания!
Новият Ви ДОМ е точно тук!
Защото с нас мечтите стават реалност!
РЕФЕРЕНТЕН 7718



