Брокер
Обща информация
Допълнителна информация
БИЛДИНГ БОКС предлага за продажба двустаен апартамент в кв. ' Овча Купел 1' .
Имотът се намира на ключова локация за района - 5 минути от метростанция, 15 минути от ' НБУ' , бъдещ парк ще се изгради на близо и множество аптеки и супермаркети;
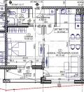
Жилището е със застроена площ от 61. 51 кв. м. и е със следното разпределение:
- Просторна дневна с кухненски бокс;
- Голяма спалня;
- Бяна с тоалетна;
- Тераса;
- Предверие;
Апартаментът е с югозападно изложение, което осигурява много естествена светлина следобед и вечер. Намира се на 2-ри жилищен от общо 7.
Отоплението е предвидено на газ. Имотът е подходящ, както за живеене, така и за отдаване под наем с много добра възвращаемост.
Има възможност за закупуване на подземно паркомясто и мазе.
Очакван срок за завършване на сградата е м. Ноември 2026г. , като етапът в момента е пред АКТ 14.
Използвани са висок клас материали за строителството, за добра топло и елетроефикастност.
БИЛДИНГ БОКС предоставя безплатна консултация и съдействие при финансиране на избрания от Вас имот.
Оферта 27058



