Продава 3-СТАЕН, град Пловдив, Христо Смирненски ID 50743761
Обща информация
Допълнителна информация
Компания X представя на Вашето внимание тристаен апартамент в Христо Смирненски!
МЕСТОПОЛОЖЕНИЕ: Христо Смирненски е един от най-предпочитаните квартали в западната част на Пловдив. Разположен близо до Гребната база и парк 'Отдих и култура', районът съчетава спокойствие, зеленина и удобен достъп до централната част на града. Отличава се с добра инфраструктура, модерни жилищни сгради, множество училища, детски градини, магазини и удобен градски транспорт. Подходящ е както за семейно жилище, така и за инвестиция.
СТРОИТЕЛСТВО: Апартаментът се намира на 2-ри, етаж, в сграда ново строителство.
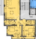
РАЗПРЕДЕЛЕНИЕ: Жилището разполага с площ от 125, 11 кв. м. , разпределена по следния начин: входно антре, дневна с кухненски бокс, две спални, две бани с тоалетна и две тераси.
СЪСТОЯНИЕ: В строеж.
Заповядайте да Ви го покажем. Използвайки нашите услуги Вие ще превърнете закупуването на новия си дом в едно приятно изживяване, ще получите персонален консултант, съдействие при кандидатстване за кредит от всички банки в България, интериорни дизайнери и екип, който да се погрижи за нужните документи по Вашата сделка. На Ваше разположение сме всеки ден, от понеделник до неделя от 09:00 до 20:00ч. Възползвайте се от безплатна консултация в наш офис, където ще ви спестим време и ще ви запознаем с всички актуални имоти в България, отговарящи на Вашето търсене. Свържете се с нас на 0887779990 или на 0884060990 и цитирайте кода към имота: 637-20571

