Посетена 3 пътиПубликувана в 18:15 на 19 Февруари 2026
Обща информация
Квадратура70 m2
Етаж11-ти
Допълнителна информация
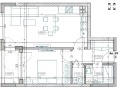
Двустаен апартамент в новострояща се луксозна жилищна сграда с площ от 69, 90м2. Разпределение: входно антре-5, 54м2, дневен тракт-23, 59м2, спалня-11, 60м2, баня с тоалетна-3, 34м2, тераса(лоджия)-3, 50м2 и килер-1, 60м2. Сградата е пред акт 14. Изложение запад. Апартаментът е вътрешен, без външни стени. Апартаментът ще бъде завършен по БДС. Разсрочено плащане. Срок за въвеждане в експлоатация - декември 2027г.
Район с отлична инфраструктура - в близост до главни пътни артерии, автобусни спирки на обществения транспорт, магазини, училища, детски градини и ясли.
Особености
Асансьор • Контрол на достъпа • Саниран • Тухла


