Обща информация
Допълнителна информация
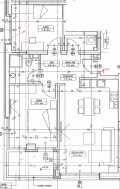
L'Artista представя тристаен апартамент в новострояща се сграда в кв. Овча Купел.
Моля, цитирайте този номер: 1179
Разпределение:
предверие
дневна с кухня
2 спални
баня + WC
мокро помещение
балкон
Към апартамента има и складово помещение - 2. 70 кв. м, което не е включено в общата квадратура
Обща квадратура: 107. 75 кв. м (85. 41 кв. м - чисто)
Схеми на плащане (60/30/10 или 50/40/10)
Изложение: юг
АКТ 16 - пролет 2027 г.
Предимства на локацията: бърз достъп до Околовръсен път, магазин Фантастико, 66-то СУ, аптеки, магазини, заведения за хранене
Апартамента ще бъде издаден на Ш3, с луксозна фасада на сградата с облицовки от HPL плоскости, стъклени парапети, монтирани радиатори и газово котле. Остъкляването е изпълнено с 6-камерна PVC дограма Deceuninck - система Elegant, цвят Антрацит двустранно.
При бани и спални помещения е предвидена шумоизолация от минерална вата.
Външните ограждащи стени са изпълнени от тухлена зидария Wienerberger, с дебелина 25 см.
Асансьор от реномирания испански производител ORONA, пригоден за 8 лица.
В сградата има още: двустайни апартаменти, тристайни, самостоятелни гаражи (на цени от 43 652 евро) и подземни паркоместа (на цени от 38 090 евро)
*L'Artista e първата агенция в България, която предлага не само посредничество при покупко-продажба на недвижими имоти, но и широк спектор от финансови услуги - кредитиране, застраховане, инвестиционни фондове, пенсионно осигуряване и други, кото осигуряват стабилност за Вашето бъдеще.
Намерете всичко, от което се нуждаете за Вашите имоти и финансова сигурност на едно място!





