Обща информация
Допълнителна информация
Компания `Х` представя на Вашето внимание двустаен апартамент в Тракия.
МЕСТОПОЛОЖЕНИЕ: Тракия е един от най-зелените и модерни квартали на Пловдив, с отлично развита инфраструктура, множество паркове, спортни площадки и широки междублокови пространства. Районът предлага разнообразие от магазини, училища, детски градини и удобен градски транспорт. Благодарение на подредената среда и модерното строителство, Тракия е предпочитан квартал както за семейства, така и за млади хора.
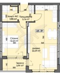
РАЗПРЕДЕЛЕНИЕ: Разполага с площ от 70 кв. м. , разгърнхата в следното функционално разпределение: кухненски бокс с хол, спалня, баня с тоалетна, тераса.
СЪСТОЯНИЕ: Сградата е в строеж.
Заповядайте да Ви го покажем. Използвайки нашите услуги Вие ще превърнете закупуването на новия си дом в едно приятно изживяване, ще получите персонален консултант, съдействие при кандидатстване за кредит от всички банки в България, интериорни дизайнери и екип, който да се погрижи за нужните документи по Вашата сделка. На Ваше разположение сме всеки ден, от понеделник до неделя от 09:00 до 20:00ч. Възползвайте се от безплатна консултация в наш офис, където ще ви спестим време и ще ви запознаем с всички актуални имоти в България, отговарящи на Вашето търсене. Свържете се с нас на 0887779990 или на 0884060990 и цитирайте кода към имота: 95987





