Продава 2-СТАЕН, град Пловдив, Христо Смирненски ID 51612844
Брокер
Обща информация
Допълнителна информация
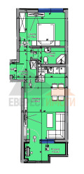
оф:4339. НОВО НА ТОП ЦЕНА! ДИРЕКТНИ ПРОДАЖБИ, БЕЗ КОМИСИОН!! АТЛАС ПАРК е най-новото бижу от портфолиото ни. Представлява малки сгради с ниско строителство, жилищни разпределения проектирани с прави форми и много малък процент общи части, като разролагаме с двустайни и тристайни апартаменти, надземни и подземни гаражи и паркоместа. Сградите са с красива архитектура, с визия прилягаща за квартала. Апартаментът се състои от светла дневна с трапезария и кухненски бокс, една спалня, баня с тоалетна, входно антре и една тераса. Строителството е прецизно с много високо качество на изпълнение и материали: керамична тухла, висок клас 5-камерна ПВЦ дограма с мултифункционално стъкло, дизайнерско стълбище от естествен камък/гранит и мрамор/ със скрито LED осветление и декоративни панели, 10 см. външна топлоизолация БАУМИТ, парапети на терасите от ковано желязо, блиндирани входни врати, безшумен асансьор ОРОНА, домофонна система с видеонаблюдение, декоративни елементи по фасадата, LED осветление със сензори по общи части и фасада и много други екстри за живущите. Жилищата се издават на шпакловка и замазка с изградена ел. инсталация с контакти и ключове, ВиК инсталация на тапа, входна блиндирана врата. Мястото е тихо и много спокойно. ЧУДЕСЕН е за инвестиция и живене. Разсрочено плащане в рамките на строителството. Агенция ЕВЕРЕСТ ИМОТИ съдейства за закупуването чрез банков кредит от водещи банки на преференциални условия за клиентите си!!











