Посетена 20 пътиПубликувана в 21:11 на 09 Октомври 2025
Обща информация
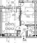
Квадратура60 m2
Етаж4-ти
Допълнителна информация
Оферта 66819 Двустаен апартамент в кв. Беломорски, НОВО СТРОИТЕЛСТВО БЕЗ КОМИСИОННА ОТ КУПУВАЧ
Предлагаме за продажба двустаен апартамент с площ от 60 кв. м, разположен на 4-ти етаж в малка бутикова сграда с модерна архитектура.
Имотът е в близост до главния път на кв. Беломорски, в спокоен и бързоразвиващ се район.
Етап на строителство:
Акт 14 след 12 месеца
Акт 16 до 16 месеца след това
Допълнителна информация:
Възможност за закупуване на паркомясто или гараж
Отлична инвестиция на изключително изгодна цена 68 900
Особености
Тухла





