Брокер
Офис 'пл. Света Неделя'Личен телефон: 0882 121 488
Посетена 69 пътиПубликувана в 14:30 на 23 Декември 2025
Обща информация
Квадратура115 m2
Етаж8-ми
ГАЗНЕ
ТEЦДА
Допълнителна информация
Функционален тристаен апартамент в жк ' ЛЮЛИН 8' !
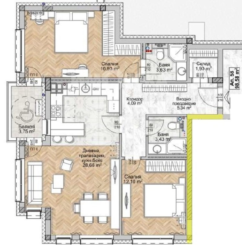
Върху площ от 115 кв. м са разположени хол с трапезария и кухненски бокс (29 кв. м), две спални 17 и 19 кв. м, две бани и балкон лоджия.
Изложения - запад.
Етаж 7 от 9.
Паркомясто 18500 евро.
' Люлин-8' или ' Люлин - център' е предпочитан за живеене и инвестиция район!
Отлична и изградена инфраструктура:
- МЕТРОСТАНЦИЯ ' Сливница'
- спирки на градски транспорт
- училища и детски градини
- множество магазини.
Модерна новострояща се сграда в жк ' ЛЮЛИН 8' .
Правилни форми и просторни помещения съответстващи на изисканите общи части!
Модерна сграда със съответстваща цена.
Метростанция.
Функционални разпределения.
Обади се сега и цитирай този код 675424
Особености
Асансьор • Тухла
Страница на обявата
Брокер
Офис 'пл. Света Неделя'Личен телефон: 0882 121 488


