Брокер
Обща информация
Допълнителна информация
Референтен номер: 1739.
Реф. номер: 1739
ЮЖНО ИЗЛОЖЕНИЕ
НОВ МОДЕРЕН ЖИЛИЩЕН КОМПЛЕКС ВЪЗМОЖНОСТ ЗА ОТСТЪПКА 8 % В КРАЙНАТА ЦЕНА
Предлагаме ви двустаен апартамент в луксозен жилищен комплекс в кв. Гагарин!
Основни характеристики на имота:
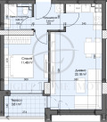
- Площ: 66. 57 кв. м
- Разпределение: Хол с кухненски бокс, спалня, баня с тоалетна, антре, тераса и склад
- Изложение: ЮГ
- Етажност: 14 ет. от 18 ет. (асансьор)
- Тип строителство: Тухла (Акт 16 е предвиден през 2028г. )
Уникална възможност за инвестиция в мечтания дом
В този новостроящ се луксозен жилищен комплекс се съчетава модерен дизайн и висококачествени строителни материали Тук ще откриете комфорт и стил, които ще отговорят на всички ваши изисквания. Апартаментите са проектирани с внимание към детайла
Цени от 900€ на кв. м до 1180€ на кв. м според начина на плащане, изложението и етажа
В сградата са на разположение едностайни, двустайни и тристайни апартаменти, с площ от 48 кв. м до 143. 38 кв. м. Състои се от четири модерни сгради, които съчетават жилищни части с офиси и търговски площи, осигурявайки удобство и функционалност на бъдещите обитатели.
ФИКСИРАНА ЦЕНА БЕЗ ИНДЕКСАЦИЯ
За повече информация и организиране на огледи, моля, свържете се с нас на посочения номер, като ще Ви е необходим следният референтен номер: 1739
Лайт Хоум имоти е доверен партньор на най-големите банкови институции в страната и съдейства за преференциални условия при нужда от кредитиране. Ще получите юридическо съдействие през целия процес на сделката, както и съдействие при подготовка, подаване и получаване на всички необходими документи за сделката.






