Продава 3-СТАЕН, област Бургас, гр. Поморие ID 52140358

318 010 €621 973.50 лв.Цената е с включено ДДС

Агенция

ЕКС НВД ООДград Бургас ул. Сердика 2, ет. 4, офис 3
Посетена 6 пътиПубликувана в 15:50 на 14 Октомври 2025

Обща информация

Квадратура124 m2
Етаж6-ти

Допълнителна информация

Компания Х представя на Вашето внимание тристаен апартамент Поморие.

МЕСТОПОЛОЖЕНИЕ:. . Поморие предлага уникално съчетание от красиви плажове, минерални извори и исторически забележителности, което го прави привлекателно за туристи. Освен това, спокойната атмосфера и близостта до Бургас го правят лесно достъпно място за почивка.



СТРОИТЕЛСТВО: Апартаментът е разположен на шести етаж, тухла.

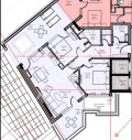
РАЗПРЕДЕЛЕНИЕ: Жилището разполага с площ 124, 32 кв. м. , състои се от хол с кухня, две спални, две бани с тоалетна, склад и тераса.

СЪСТОЯНИЕ: Имотът се предлага както на тапа, така и на степен до ключ,
което Ви дава възможността да го усторите по Ваш вкус и да го превърнете
в мечтания дом!

Заповядайте да Ви го покажем. Използвайки нашите услуги Вие ще
превърнете закупуването на новия си дом в едно приятно изживяване, ще
получите персонален консултант, съдействие при кандидатстване за кредит
от всички банки в България, интериорни дизайнери и екип, който да се
погрижи за нужните документи по Вашата сделка. На Ваше разположение сме
всеки ден, от понеделник до неделя от 09:00 до 20:00ч. Възползвайте се
от безплатна консултация в наш офис, където ще ви спестим време и ще ви
запознаем с всички актуални имоти в България, отговарящи на Вашето
търсене. Свържете се с нас на 0887779990 или на 0882009283 и цитирайте
кода към имота: 777 - 23278

Особености

В строеж • Тухла

Страница на обявата

Агенция

ЕКС НВД ООДград Бургас ул. Сердика 2, ет. 4, офис 3

Споделяне

Преглeд на обявите по населени места: