Брокер
Обща информация
Допълнителна информация
НОВА СГРАДА ДО БЪДЕЩА МЕТРОСТАНЦИЯ!
DMG ИМОТИ ИНВЕСТ - Ексклузивен партньор в продажбите, предлага 3-стаен апартамент А16 в новострояща се сграда в кв. Левски-В.
ЛОКАЦИЯ: Сградата е близо до бъдещата Метростанция на бул. Владимир Вазов и ул. Станислав Доспевски, множество заведения и магазини, включително големи хипермаркети като Billa, Фантастико, Homemax, Плувно-развлекателен комплекс 'Варадеро' и бъдещ парк. В непосредствена близост има спирка на градския транспорт - автобуси: 12, 14, 78, 119, 120.
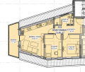
РАЗПРЕДЕЛЕНИЕ: Ап. 16 се намира на пети етаж /от шест/ на сградата и се състои от дневна с кухненски бокс и трапезария, две спални, баня с тоалетна и тераса. Чиста застроена площ на апартамента: 73, 46 кв. м.
ЕТАП: Сградата е в етап на строителство преди Акт 14.
Възможност за закупуване на гараж на партерното ниво или външно паркомясто.
Работим и през почивните дни!
ЗА КОНТАКТИ:
Петя Накова
DMG ИМОТИ ИНВЕСТ
тел. 0876 825441; 02/980 16 59
e-mail: office@dmgimoti. com
www.dmgimoti. com




