Брокер
Обща информация
Допълнителна информация
Ref. No3309
Имаме удоволствието да ви представим двустаен апартамент в малка бутикова сграда, със само 6 апартамента, намираща се в кв. Горна Баня, непосредствено до спирка на градски транспорт и в близост до Италиянския Лицей.
За удобство на своите обитатели, инвеститора е предвидил да има озеленен двор с обособен детски кът, както и басейн със солна електролиза за чиста вода, ситуиран на покрива на сградата.
Етапи на строителство: в момента първа копка;
акт 14 до окт. 2026г. ;
акт 15 - до края на 2026г. ;
акт 16 - до март/април 2027г.
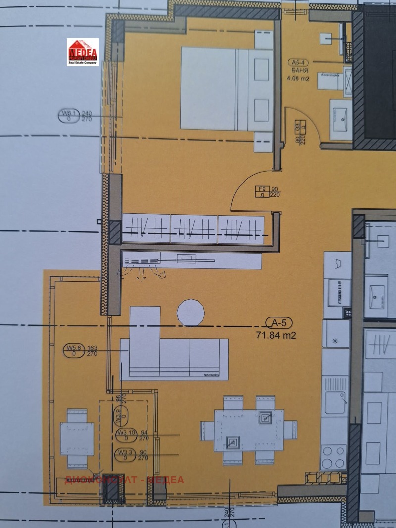
Разпределение на апартамента: входно антре, хол с кухненски бокс, спалня, баня с wc, тераса. Изложение: юг, север, запад.
Степен на завършеност: шпакловка и замазка, ПВЦ дограма, стъклопакет четири сезона, блиндирана входна врата. Отоплението е на газ, като има опция и за подово отопление.
Към имота може да се закупи допълнително:
- склад (5000 евро)
- подземно паркомясто при цена 35 000евро.
Гъвкави схеми на плащане!
В сградата има свободни още два 3-ни партерни апартамента със собтсвен двор и един 3-н апартамент!
Имотът е недалеч от центъра на Горна Баня, като в близост има детска градина, училище , хипермаркет, магазини, заведения и др.





