Брокер
РосицаЛичен телефон: 0886067888, 02/9866668
Посетена 128 пътиПубликувана в 11:09 на 22 Януари 2026
Обща информация
Квадратура111 m2
Етаж3-ти
Допълнителна информация
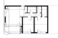
Представяме на Вашето внимание тристаен апартамент в кв. Овча Купел
Зп е 111, а ЧП е 92
Изложение: северозапад
Сградата е на кота +15.
Жилището се състои от:
антре,
дневна,
2спални,
2 бани, ,
тераса и
мокро помещение.
За повече информация и огледи:0878552625, оферта 17741
Особености
Тухла
Страница на обявата
Брокер
РосицаЛичен телефон: 0886067888, 02/9866668


