Обща информация
Допълнителна информация
'Би Ем Екс Груп' ви представя тристаен апртамент в един от най -желаните райони, както за живеене така и за инвестиция , а именно жк. Студентски град.
Имотът е ситуиран на 10 ви етаж нат партер , който е жилищен.
ЕТАП НА ЗАВЪРШЕНОСТ:АКТ 14 , акт 16 се очаква септември 2026г.
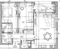
РАЗПРЕДЕЛЕНИЕ: Жилището разполага с площ от 120 кв. м. , разпределена във входно антре, всекидневна с трапезария и кухненски бокс (30кв. м), две спални помещения (14кв. м и 16кв. м. ), две бани с тоалетни, складово помещение, дрешник и тераса. Имотът е еталон за практичност и простор , което всеки от нас търси.
Има възможност за закупуване на гараж или ПМ . На около 8 минути пешеходно разстояние ще се намира бъдещата метростанция. В района има и новоизградена детска градина .
'Би Ем Екс Груп' предлага и съдействие при кредит.
За повече информация и огледи, с усет към детайла и грижа към вашия избор, се свържете с нас на 0883350750. КОД КЪМ ИМОТА:1046-30047









