Обща информация
Допълнителна информация
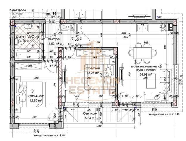
Агенция HEGEMON ESTATE Ви представя тристаен слънчев апартамент в новопостроена сграда с АКТ 15 в кв. Виница , гр. Варна. Жилището се намира на ет. 3/4 с асансьор и отлични общи части. На обща жилищна площ от 97 кв. м са разпределени както следва: коридор, дневен тракт с кухненски бокс с излаз към тераса, две слънчеви спални, санитарен възел, килер. Жилището се бъде издадава по БДС. Сградата е изграждена с висококачествени материали от утвърден строител.
Отлична локация в непосредствена близост до: хранителни магазини, автобусни спирки на градския транспор. Идеален имот за инвестиция, както и за закупуване на мечтания дом.
Агенция HEGEMON ESTATE съдейства с професионална консултация, подготовка на нужните документи за закупуване на желаният от вас дом, както и съдействие за отпускане на банков кредит при най-добри условия. За повече информация, заповядайте в нашият офис, който се намира на бул. Владислав Варненчик 109, или се обадете на посоченият телефон. Код на офертата : 14618



