Брокер
Обща информация
Допълнителна информация
Невероятен двустаен апартамент в чисто нов жилищен комплекс в един от най-спокойните райони на град Варна - Аспарухово.
Апартаментът е ситуиран на партерен етаж ( повдигнат ) в нова тухлена кооперация от 2025г.
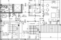
Жилището разполага с площ от 69 кв. м. разпределена в коридор, дневен тракт с кухненски бокс, спалня, тераса, баня и тоалетна.
Имотът ще бъде издаден по БДС.
Към имота има прилежащо избено помещение 4 кв. м.
В близост до спирка на градски транспорт, парк, училище, детска градина, магазини от всякакъв тип.
Комплексът представлява четири сгради с модерна визия, контрол на достъпа, озеленяване, места за отдих, детска площадка.
Очаква се АКТ 16 в началото на 2026г.
ИМА ВЪЗМОЖНОСТ ЗА ЗАКУПУВАНЕ НА ВЪНШНИ, ПОДЗЕМНИ ПАРКОМЕСТА И ГАРАЖИ В СГРАДАТА.
Все още има възможност за преуствойване, така че да стане тристаен или четиристаен апартамент!
Обади се сега и цитирай този код 672229


