Брокер
Обща информация
Допълнителна информация
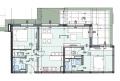
Агенция Явлена предлага за продажба тристаен апартамент на партерен етаж в жилищна сграда в Младост 2. Имотът е с площ от 97 кв. м (ЗП - 84 кв. м) и разполага допълнително с 17 кв. м прилежаща двор-тераса идеално зелено пространство за релакс и забавления. Разпределението включва антре, светла дневна с кухненски бокс, две спални, два санитарни възела, дрешник и мокро помещение. Сградата предлага модерна визия, луксозни общи части, контрол на достъпа и озеленено вътрешно пространство. Има възможност за закупуване на подземен гараж. Локацията в Младост 2 осигурява бърз достъп до метро, търговски центрове, училища и паркове. Цената е без включен ДДС. Не пропускайте възможността да станете собственик на този имот, съчетаващ градски комфорт и собствен зелен кът! За повече информация и огледи, свържете се с нас!/YavlenaCOM-163764/



