Брокер
Обща информация
Допълнителна информация
INclusive Варна Ви предлага отлична възможност за покупка на двустаен апартамент в новострояща се жилищна сграда в кв. Възраждане 3, местност Пчелина тих и предпочитан район с удобна инфраструктура и бърз достъп до ключови точки в града.
📌 Основна информация:
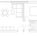
Обща площ: 54, 50 кв. м.
Етаж: 1-ви жилищен (над партер)
Разпределение: антре, просторна дневна с кухненски кът, спалня, дрешник, баня с тоалетна
Състояние: степен на завършеност по БДС
Срок на завършване: 2026 г.
🏗 За сградата:
Съвременен архитектурен проект, съчетаващ жилищни и офис площи
Общо 24 апартамента
Предвидени открити паркоместа
Висококачествени материали и модерни строителни технологии
Отлична локация в близост до транспортни връзки, магазини, училища, детски градини и здравни заведения
💡 Предимства:
Функционално разпределение с максимално използване на пространството
Идеален за лично ползване или отдаване под наем
Възможност за покупка на паркомясто
Спокойна среда с лесен достъп до централни части на града
✨ Този апартамент е перфектен избор както за първи дом, така и за дългосрочна инвестиция с висока доходност.
За повече информация и организиране на оглед, свържете се с нас на посочеия телефон и цитирайте следния код: 12582

