Посетена 5 пътиПубликувана в 14:12 на 06 Март 2026
Обща информация
Квадратура96 m2
Допълнителна информация
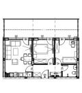
🏡 Двустаен апартамент НОВА СГРАДА ПРЕД АКТ 15 с възможност за преустройство на тристаен в кв Южен.
🔑 ХАРАКТЕРИСТИКИ НА ИМОТА:
➤ входно антре
➤ дневна с кухненски бокс и трапезария
➤ спалня
➤ баня с WC
➤ тераса
📌 Възможност за закупуване на паркомясто или гараж
📌 Огледи с предварителна уговорка
📞 За оглед и допълнителна информация - обадете се сега ✅
✨ Deluxe Homes - коректен партньор в сделките с недвижими имоти
✔ Юридическо съдействие
✔ Кредитиране
✔ Пълно обслужване до сделка
🔍 Код на обявата: 141745
Особености
Асансьор • Видео наблюдение • Контрол на достъпа • Охрана • Саниран • В затворен комплекс • Тухла


