Брокер
Обща информация
Допълнителна информация
Агенция SUPRIMMO: www.suprimmo.bg
Представяме двустаен апартамент в качествена нова сграда в кв. ' Левски' , с удобна локация с бърз достъп до ' Ботевградско шосе' , което свързва района с бул. ' Мадрид' и осигурява удобна връзка с централната част на София. Разработена е с концепция с приоритет върху максималната енергийна ефективност и ниските разходи за поддръжка, благодарение на качествените материали и изпълнението.
В строеж. Планиран Акт 16 - март 2027 г.
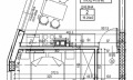
Имотът е с обща площ 52, 67 кв. м, разположен е на партерен етаж и се състои от антре, дневна с кухня, спалня, баня с тоалетна, директен излаз в голям двор с площ 85. 82 кв. м. Към имота има мазе с площ 2. 05 кв. м. Жилището се издава по БДС, с възможност новия собственик да оформи интериора по свой стил.
Жилищната сграда е проектирана на 6 етажа + сутерен, с общо 19 апартамента. Общите части ще бъдат изпълнени в луксозен стил, с внимание към детайла и високи стандарти за качество.
Налични за продажба са:
двустайни апартаменти;
един тристаен апартамент;
две студиа на последен етаж.
За максимално удобство са предвидени:
14 подземни паркоместа;
5 открити паркоместа.
*Има опция за закупуването на подземни паркоместа на цени от 27 000 евро (52, 806. 60 лв. ) без ДДС.
Конструкция, материали и енергийнa ефективност:
Фасада с топлоизолация 10 см EPS Baumit;
Покрив с 14 см минерална вата и двойна хидроизолация, завършен с битумни керемиди;
Външни и преградни стени от висококачествени тухли Wienerberger;
Фасадни стени с комбинация от полимерна мазилка и декоративни тухли Caparol;
Петкамерна дограма Veka с троен стъклопакет с К-стъкло отлична шумо- и топлоизолация;
Блиндирани входни врати;
XPS под подовата замазка във всички помещения за по-добра шумо- и топлоизолация;
Вградени: . ..
Цената на имота е 108 073 евро / 211 372. 42 лв. без ДДС или 129 687 евро / 253 646. 90 лв. с ДДС. Данъчен кредит може да се ползва при определени условия.
За повече информация свържете се с нас и цитирайте референтния номер на имота. Моля, кажете, че сте видeли обявата в този сайт.
Референтен номер: SOF-136409
Тел: 0884 603 656 , 02 424 99 01
Отговорен брокер:Иво Ценов





