Продава 1-СТАЕН, област Бургас, гр. Созопол ID 54263707
58 500 €114 416.06 лв.Цената е с включено ДДС
Посетена 281 пътиПубликувана в 12:32 на 03 Октомври 2024
Обща информация
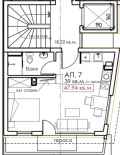
Квадратура48 m2
Етаж4-ти
Допълнителна информация
Без комисиона. Едностаен апартамент в сграда с асансьор на около 350 м. до плаж Харманите. Апартаментът е на четвърти етаж, функционално разпрделен в просторна дневна с кухненски бокс, зона за спане, баня с тоалетна и балкон. Продава се в етап на завършеност- шпакловка и замазка, с опция за завършване. Пусков срок на сградата- м. 11. 2025г.
Референтен номер 1293
Особености
В строеж • Асансьор • Тухла



