Продава 3-СТАЕН, град София, Люлин - център ID 54397478
218 000 €426 370.94 лв.Цената е с включено ДДС
Брокер
КристинаЛичен телефон: 0897620898
Посетена 37 пътиПубликувана в 12:16 на 11 Ноември 2025
Обща информация
Квадратура97 m2
Етаж5-ти
ГАЗНЕ
ТEЦНЕ
Допълнителна информация
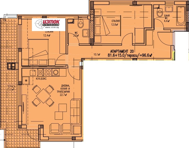
Продава се тристаен апартамент, 96, 6 кв. м от които 15кв. м. тераса около дневната и едната спалня. Състои се от хол с кухненски бокс, две спални баня с тоалетна, отделно втора тоалетна към едната спалня.
Разположен е на пети жилищен етаж. Към апартамента има възможност за закупуване на надземен гараж.
СГРАДАТА е в начален етап на строителство, АКТ 16 се очаква септември 2028г. В момента е на втора плоча над партер. Състои се от шест надземни нива.
НАМИРА се в Люлин център , на 300 метра от метростанция Люлин. В близост до училище и магазини.
Телефон за връзка 0897620898 Кристина Калъпсъзова
Особености
Асансьор • Интернет връзка • Тухла
Страница на обявата
Брокер
КристинаЛичен телефон: 0897620898




