Обща информация
Допълнителна информация
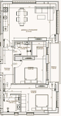
Организация Фокус има удоволствието да ви представи тристаен апартамент в бутикова сграда в квартал Кършияка, град Пловдив!
Апартаментът е 117, 35 кв. м. със следното разпределение: антре, дневна с кухненски бокс, две спални, от които едната има собствена баня с тоалетна и дрешник, отделна баня с тоалетна и тераса.
Имотът е с изложение юг-запад-изток.
Намира се на 4-ти последен етаж.
Сградата е с обща площ от 1600 кв. м. и разполага с едностайни, двустайни и тристайни апартаменти.
Паркирането е осигурено с наземни гаражи и паркоместа.
Апартаментите са подходящи както за живеене така и за инвестиция поради непосредствената близост до ПУ Паисий Хилендарски , ЕГ Пловдив , ЕГ Иван Вазов , УМБАЛ Пловдив , Стадион Марица, множество супермаркети и автобусни спирки.
За повече информация и огледи, не се колебайте да се свържете с нас!
Референтен номер: 43879



