Брокер
Обща информация
Допълнителна информация
АКТ 16!!!
Svetlina Real Estate има удоволствието да Ви предложи тристаен апартамент в кв. Малинова долина.
< ЗА ЖИЛИЩЕТО >
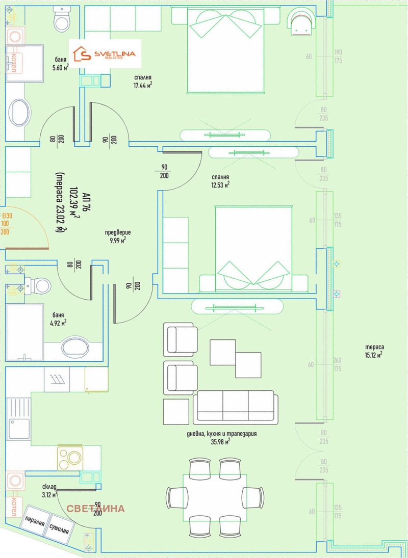
- Площ - 146 кв. м. от които 102 кв. м. застроена площ и 20 кв. м. общи части и 24 кв. м. тераса;
- Разпдеделение: входно антре, дневна с кухненски бокс, две спални, две бани с тоалетна, мокро помещение и тераса;
- Етаж - седми;
- Изложение: Изток;
- Отопление - ГАЗ или електричество;
- Има възможност за покупка на гараж или паркомясто.
< ЗА СГРАДАТА>
* Газифициран;
* C луксозни довършителни работи на общите части;
* Aсансьор Orona 3G X15
* 5-камерна PVC дограма, троен стъклопакет ;
* Изградена климатична инсталация;
* Блиндирани входни врати ;
* Богато озеленяване на вътрешен двор;
* 24 часова охрана, видеонаблюдение и поддръжка на комплекса.
Локация: Намира се в непосредствена близост до RING MALL, с директен достъп до главни пътни артерии бул. Климент Охридски и Околовръстен път. Бърза и удобна връзка до центъра на столицата.
Цената е без ДДС!!!
- Кои сме ние и защо да изберете Нас?
Svetlina Real Estate е с 15 годишен опит в посредничеството при покупко-продажба на недвижими имоти. Мисията ни е да реализираме Вашите идеи по най-добрия начин. Нашите експерти ще Ви съдействат и подпомoгнат при финализиране на покупката на недвижим имот с банков кредит, защото за нас е важно клиентите ни да са напълно удовлетворени.
Предлагаме Ви напълно БЕЗПЛАТНИ консултации и съдействие при всякакъв вид банково финансиране.
Отговорен брокер: Иван Кирилов 0893006908
https://www.svetlinaimot. com/

