Брокер
Обща информация
Допълнителна информация
Промоционална цена! Утвърден инвеститор с безупречна репутация!
Предлагаме Ви апартамент в нов комплекс, изпълняван по Европейски стандарт с високо качество, модерна визия и стил! Нисък процент общи части на тихо място! Комплексът съчетава модерна архитектура с висококачествени материали, предоставяйки комфорт и функционалност.
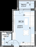
Разпределението на апартамента е както следва: просторна дневна(24. 33кв. м), баня с тоалетна(4. 30кв. м) и тераса(3. 75кв. м). Застроена площ(37. 53кв. м. ). Общи части (8кв. м. ). Общо площ (45. 53кв. м. ). Изложение - Запад!
Към жилището имате възможност да закупите и паркомясто , което се заплаща допълнително.
Цената е актуална при плащане на цялата сума до края на 01. 12. 2025г!
Адресът на офиса ни в Пловдив е бул. Източен 47, етаж 2, офис 7

