Продава МЕЗОНЕТ, град Варна, м-т Долна Трака ID 56025914
Обща информация
Допълнителна информация
DOMIO предлага ексклузивно за продажба Апартамент тип мезонет с две спални с покривна тераса, разположен в нова бутикова жилищна сграда с 8 апартамента и модерен архитектурен облик.
Чиста жилищна площ: 120, 60 м²
Покривна тераса: 60 м² с директен достъп от всекидневната
Изба: 3. 52 м²
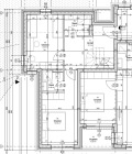
Разпределение:
Първо ниво:
Входно антре
Спалня 1 16 м² и собствена баня с WC
Спалня 2 15 м²
Просторна всекидневна 57 м² с излаз към двора
Баня с WC
Вътрешно стълбище към второ ниво
Второ ниво:
Просторна всекидневна 50 м² с излаз към покривна тераса с панорамна морска панорама
WC
Степен на завършеност: по БДС
Подготовка за инсталиране на климатици.
За TRAKA POINT
🏢 Бутикова жилищна сграда с модерен дизайн и висока енергийна ефективност
Представяме ви нова бутикова сграда с общо 8 апартамента и 19 паркоместа, разположена в отлично изградена градска среда с лесен достъп от ул. Св. Климент Охридски .
Сградата впечатлява с модерен и стилен архитектурен облик, създаден с внимание към всеки детайл. При строителството се използват висококачествени материали, които гарантират висока енергийна ефективност и комфорт на обитаване през всички сезони.
За удобство на собствениците:
🔹 До паркоместата ще бъде изградена кабелна линия, позволяваща лесно свързване към зарядни станции за електромобили.
🔹 Достъпът до сградата е по асфалтиран път.
🔹 Налице е централна канализация.
Сградата е проектирана за хора, които ценят комфорт, качествена среда и съвременни технологични решения в жилищното строителство.
Гъвкави условия за покупка:
Възможност за избор между три варианта за разсрочено плащане в периода между издаване на Разрешение за строеж и въвеждане на сградата в експлоатация.
Етап: очаква разрешение за строеж до 11. 2025г. Въвеждане в експлотация 2027г.
Посочената цена е при варианта с 90% плащане при влязло в сила разрешение за строеж.
Цена при алтернативен разсрочен план на плащане:
15% при издаване на Разрешение за строеж
15% при достигане на Кота 0. 00
30% при Акт 14
30% при Акт 15
10% при издаване на Разрешение за ползване → 359 500
📩 За повече информация относно проекта, свободните апартаменти и индивидуалните възможности за плащане, моля свържете се с нас.









