Брокер
Обща информация
Допълнителна информация
AKT 16!!! НОВА СГРАДА на 300 метра от МЕТРОСТАНЦИЯ!
Екипът на Йохоум недвижими имоти има удоволствието да ви представи тристаен апартамент в нова сграда, състояща се от двустайни и тристайни апартаменти с отлични квадратури и разпределения. Комплексът се състои от две сгради с общ затворен двор от 1200 кв. м. , първото ниво ще е озеленен двор, паркоместа и гаражи. Намира се в непосредствена близост до метростанция, спирки на градски транспорт, супермаркети, училища, детски градини и др.
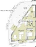
Апартаментът се намира на 4-ти жилищен етаж с площ 102 кв. м. и се състои от : входно антре, всекидневна с кухня, две спални, баня с тоалетна, самостоятелна тоалетна, склад и балкон. Отоплението в цялата сграда е на ГАЗ и електричество. Имотът ще бъде завършен по всички изисквания за ново, модерно и луксозно строителство, френски прозорци и парапети на балконите от триплекс, външна топлоизолация и модерна сградна архитектура. За ваше улеснение прилагаме схема на разпределение.
За повече информация относно проекта се свържете с нас и цитирайте кода на обявата: 7401.
Схемите на разпределение на всички свободни апартаменти от сградата можете да видите на: www.lulin8. yohome.bg








