Брокер
ДесиславаЛичен телефон: 0897343733
Посетена 34 пътиПубликувана в 08:40 на 14 Януари 2026
Обща информация
Квадратура73 m2
Етаж2-ри
ГАЗНЕ
ТEЦНЕ
Допълнителна информация
Уважаеми клиенти,
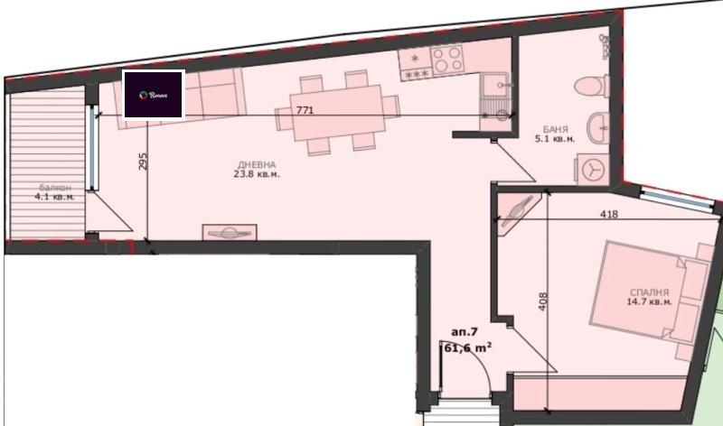
агенция Ронева представя на Вашето внимание двустаен апартамент с чиста застроена площ от 61. 6кв. м. намиращ се на втори етаж в новострояща се сграда в кв. Погреби.
Намира се на комуникативна локация с бърз достъп до ул. Девня, на пешеходно разстояние от търговски обекти, училища и основни транспортни връзки локация, която осигурява удобство и комфорт в ежедневието.
Апартаментът ще се състои от просторна дневна с кухнески бокс (23. 8кв. м. ), спалня (14. 7кв. м. ), баня с тоалетна (5. 1кв. м. ) и балкон (4. 1кв. м).
Възможност за закупуване на паркоместа!
Гъвкави схеми за разплащане.
За повече информация и оглед се свържете с нас на 0884788229
Реф. номер: 90034
Особености
Тухла
Страница на обявата
Брокер
ДесиславаЛичен телефон: 0897343733


