Посетена 175 пътиПубликувана в 15:24 на 15 Декември 2025
Обща информация
Квадратура155 m2
Етаж4-ти
ГАЗДА
Допълнителна информация
Амрита Имоти Ви предлага тристаен апартамент с панорамна тераса в кв. Горна баня.
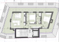
Разпределение:
Входно антре, дневна с кухненски бокс, две спални, баня с тоалетна, мокро помещение, панорамна тераса, обикаляща целия апартамент, с площ 43. 7 кв. м.
Обща площ: 155. 48 м²
Застроена площ: 124. 5 м²
Подземно паркомясто- 25 000 евро.
Разрешение за ползване се очаква през Март 2026 г.
За сградата:
Четириетажна сграда с общо 13 апартамента, включително и жилища на партерно ниво.
Петкамерна дограма с троен стъклопакет четири сезона отлична топло- и шумоизолация.
Асансьор от реномирана марка Orona.
Реф. Номер: 2424
За повече информация: Николета Миланова
Особености
Тухла






