Посетена 282 пътиПубликувана в 11:08 на 10 Септември 2025
Обща информация
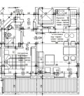
Квадратура72 m2
Етаж2-ри
Допълнителна информация
ИЗДАДЕН А15!!! А16 ДО 2 МЕСЕЦА
Чудесен нов тухлен апартамент близо до борова гора в гр. Варна, кв. Аспарухово.
Жилището се състои от - коридор, баня и тоалетна, спалня и всекидневна, тераса, всички помещения с правилни форми подходящи за различни функционални разпределения.
Сградата е с асансьор. Изложението е изцяло на юг, а от терасата се открива страхотна панорама!
За повече подробности и организиране на оглед звъннете на посочения телефон и цитирайте код 122911.
Особености
Тухла





