Брокер
СтелаЛичен телефон: +359 877 214 549
Посетена 150 пътиПубликувана в 10:33 на 25 Ноември 2025
Обща информация
Квадратура123 m2
Допълнителна информация
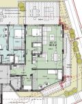
Brain Trust представя тристаен партерен апартамент в комплекс от затоврен тип с акт 14, в квартал Бояна.
Жилището е с чиста площ от 106. 12 кв. м. и 87кв. м двор, като разполага с просторна дневна с трапезария и кухненски бокс, две спални, две бани и складово помещение.
Предлагаме още три апартамента в сградата, като има възможност за допълнително закупуване на гараж.
Етап на завършеност: Акт 14
Код на офертата: 6838
За повече информация и контакт: 0877 214 549
Особености
Асансьор • В затворен комплекс • Тухла
Страница на обявата
Брокер
СтелаЛичен телефон: +359 877 214 549


