Посетена 54 пътиПубликувана в 17:09 на 17 Ноември 2025
Обща информация
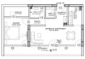
Квадратура83 m2
Етаж3-ти
ГАЗНЕ
ТEЦНЕ
Допълнителна информация
ДИРЕКТНИ ПРОДАЖБИ ОТ ИНВЕСТИТОР!!
гр. Пловдив, бул. Асеновградско шосе 4
Сградата е с Разрешение за ползване от 2025 г.
Предлагаме Двустаен апартамент 83 кв. м, югозападно изложение.
Разпределение: дневна с кухня, баня с тоалетна, самостоятелна спалня с дрешник, килер и голяма тераса.
Сградата разполага с подземен и наземен паркинг.
Особености
Асансьор • Контрол на достъпа • Тухла









