Брокер
ЕленаЛичен телефон: 0879500487
Посетена 2 пътиПубликувана в 13:59 на 03 Април 2026
Обща информация
Квадратура78 m2
Етаж3-ти
ГАЗНЕ
ТEЦНЕ
Допълнителна информация
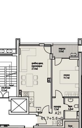
Имоти Премиер представя двустаен апартамент в кв. Сарафово, гр. Бургас ул. Ангел Димитров.
📐 Площи:
Обща площ: 78 кв. м
Чиста площ: 67, 3 кв. м
🏠 Разпределение:
Всекидневна с кухненски кът
Спалня
Коридор
Баня с тоалетна
Веранда
🏢 За сградата:
Етаж: 3 от 5
Акт 14
➕ Допълнително:
Възможност за закупуване на паркомясто 12 000 евро
За огледи се свържете с нас.
Код на Имота: 392848
Особености
Асансьор • Възможност за дан. кредит • Тухла
Страница на обявата
Брокер
ЕленаЛичен телефон: 0879500487


