Обща информация
Допълнителна информация
ДИРЕКТНО ОТ ИНВЕСТИТОРА!!!
Когато искаш всичко да е близо, а домът-съвършен .
Новият проект на Крес инвест 2007 ЕООД - Алфа, Бета и Гама е пред Делта планет мол, три модерни жилищни сгради, които съчетават в себе си стилна архитектура, функционалност и отлична локация.
Всеки от 3-те блока Алфа, Бета и Гама е на 6 етажа с по 18 апартамента във всеки блок. Проектирани са с внимание към детайла, съобразени са със съвременните изисквания за удобство и качество на живот.
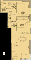
Апартаменти A. 1. 7 / и 1. 10/ са типови тристайни жилища, разположени са съответно на третия / четвъртия етаж в сграда 'АЛФА'. Състоят се от преддверие, дневен тракт, две спални, две бани с тоалетни, килер и тераса.
Сградите са разположени пред южната страна на Делта планет мол, на крачка от магазини на популярни търговски марки, разнообразни услуги, удобства, ресторанти и хранителни вериги.
С бърз и удобен достъп до главни булеварди. На разположение са удобни автобусни спирки, учебни заведения и хипермаркети.
За удобство на живущите са предвидени паркоместа.
Жилищата са създадени, за да осигурят уют, удобство и дългосрочна стойност за своите собственици.
Крес инвест 2007 ЕООД предлага гъвкава схема на разсрочено плащане.







