Посетена 2 пътиПубликувана в 18:13 на 10 Април 2026
Обща информация
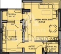
Квадратура78 m2
Етаж8-ми
ГАЗНЕ
ТEЦНЕ
Допълнителна информация
💠 Оферта 110! 💥 БЕЗ КОМИСИОННА! 🌟 1100 КВ. М. ! ✔ ️ ДОКАЗАН ИНВЕСТИТОР! 🏗 ️ ПРЕД АКТ 14!
✅ Агенция АТОЛ ЕСТЕЙТ Ви представя: Двустаен апартамент в модерна сграда в кв. Кючук Париж, гр. Пловдив.
✨ Характеристики:
Просторно и функционално разпределение
Луксозно и модерно изпълнени общи части
ПРЕД АКТ 14 - идеален момент за инвестиция
🌿 Сградата предлага спокойствие, комфорт и отлична локация.
🏦 Предлагаме и професионално кредитно посредничество при ипотека, потребителски кредит и рефинансиране!
Особености
Тухла









