Обща информация
Допълнителна информация
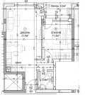
Продавам двустаен апартамент с площ от 61 кв. м. и отделно 4 кв. м. прилежащ към апартамента склад. Разположен на 3-ти етаж (2-ри жилищен) от 5-етажна тухлена сграда в един от най-предпочитаните и бързо развиващи се райони на София кв. Дружба-2. Сградата е с акт 16 февруари 2026г.
Апартаментът е на шпакловка и замазка, с изложение североизток и се състои от: дневна с кухненски бокс, спалня, баня с тоалетна, балкон, входно антре.
Жилището е с отлично разпределение, изцяло вътрешно и много светло, подходящо както за живеене, така и за инвестиция.
Локацията е изключително удобна на кратко пешеходно разстояние от метростанция ИЕЦ и в близост до спирки на градски транспорт, училище, детска градина, два хранителни хипермаркета, зелени площи.
За повече информация и оглед, може да се свържете на посочения телефон.






