Брокер
Обща информация
Допълнителна информация
БИЛДИНГ БОКС предлага за продажба двустаен апартамент в нова сграда в кв. ' Остромила' .
Предимства на имота:
- ЛОКАЦИЯ: Най-развита инфраструктурна локация в кв. ' Остромила' . Намира се на асфалтов път сред нови ниски сгради и къщи.
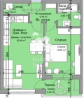
- РАЗПРЕДЕЛЕНИЕ: Просторна всекидневна с кухненски бокс с площ от 22, 26 кв. м, спалня с площ от 13, 85 кв. м, антре, склад, баня с тоалетна и тераса.
- ЕТАЖНОСТ: 5-ти етаж от общо 6.
- ОТОПЛЕНИЕ: Електричество.
- ИЗЛОЖЕНИЕ: ИЗТОК.
- ПАРКИРАНЕ: Налични подземни и наземни гаражи, както и подземни паркоместа.
- СГРАДА: Апартаментът се намира в нова сграда, състояща се от 2 секции по 5 жилищни етажа.
- ЕТАП НА СТРОИТЕЛСТВО: Пред АКТ 14. Въвеждане в експлоатация (АКТ 16) се очаква през 2027г.
* НИСЪК ПРОЦЕНТ ОБЩИ ЧАСТИ
БИЛДИНГ БОКС предоставя безплатна консултация и съдействие при финансиране на избрания от Вас имот.
Оферта 24843




